Skip to main navigation Zum Hauptinhalt springen Skip to page footer

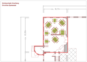
Speiseraum

Ein wahres Prunkstück in unserer Halle ist unser Speiseraum. Dieser wurde erst vor kurzem unter ernormem Aufwand renoviert und bietet ideale Räumlichkeiten für die kleine Feier mit bis zu 80 Personen.
Der Speiseraum besitzt einen separaten Eingang eine eigene Theke und eine Durchreiche zur Küche.

Wenn Sie den Speiseraum mieten möchten setzen Sie sich bitte mit unserem Hallenwart in Verbindung.

Ansprechpartner für Vermietungen:

Franz-Werner Mestermann (Hallenwart)

0171 7422383